Attraktive Büroräumlichkeiten im Neumarkt St.Gallen
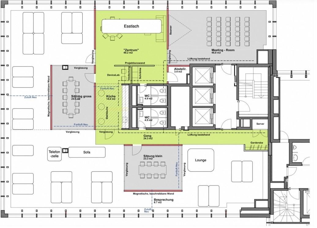
Im Neumarkt stehen im dritten Obergeschoss 398 m² moderne Büroräumlichkeiten zur Nachmiete bereit. Die Fläche umfasst einen grosszügigen Open-Space-Bereich mit Platz für mehrere Arbeitsplätze sowie drei grosse, separate Meetingräume. Glasfaseranschluss, Strominstallationen und eine Klimaanlage sind vorhanden. Die zentrale Lage wenige Gehminuten vom Bahnhof entfernt bietet zudem direkten Zugang zum Migros Restaurant und zu zahlreichen weiteren Geschäften. Die Bürofläche kann flexibel und kurzfristig übernommen werden und bietet eine zeitgemässe Infrastruktur in einem repräsentativen Umfeld.
Eckdaten
| Spalte 1 | Spalte 2 |
|---|---|
| Objektadresse | Vadianstrasse 25a |
| Quartier | Innenstadt |
| Nutzfläche | 398 m2 |
| Mietzins | CHF 297 pro m2/Jahr exkl. NK |
| Bezugstermin |
nach Vereinbarung |
