Moderne Bürofläche an zentraler Stadtlage
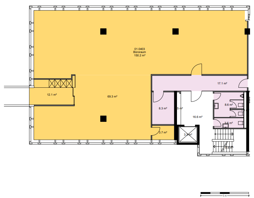
Die Bürofläche bietet eine moderne und freundliche Arbeitsumgebung. Der bestehende Vormieterausbau umfasst Elektroinstallationen sowie eine IT-Verkabelung mit Serverrack. Die Fläche ist über den Haupteingang oder die Tiefgarage zugänglich, in der zahlreiche Parkplätze zur Verfügung stehen. Die Sanitär- und Aufzugsanlagen werden gemeinschaftlich genutzt.
Der Standort zeichnet sich durch seine zentrale Lage in der Stadt St.Gallen aus. Der Bahnhof ist in fünf Minuten zu Fuss erreichbar, zudem besteht eine gute Anbindung an den öffentlichen Verkehr und die Autobahnauffahrt Kreuzbleiche. In unmittelbarer Umgebung befinden sich zudem diverse Verpflegungsmöglichkeiten.
Eckdaten
| Spalte 1 | Spalte 2 |
|---|---|
| Objektadresse | Wassergasse 44 |
| Quartier | Innenstadt |
| Nutzfläche | 252 m2 |
| Teilflächen | auf Anfrage |
| Mietzins | CHF 205 m2/Jahr exkl. NK |
| Bezugstermin |
nach Vereinbarung |
