Bürofläche an zentraler Lage in St.Gallen
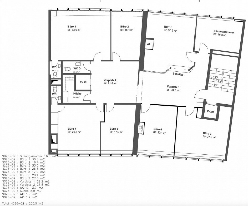
Die Büroräumlichkeiten an der Neugasse 26 in St.Gallen befinden sich im 2. Obergeschoss eines zentral gelegenen Gebäudes, nur wenige Schritte vom Bahnhof entfernt. Die Fläche umfasst rund 253 m² und eignet sich für Büro-, Gewerbe- oder Lagernutzungen sowie als Hobbyraum. Die Räumlichkeiten sind hell und gut erschlossen; ein Lift führt direkt ins Büro. In der Umgebung befinden sich verschiedene Restaurants, Cafés und Einkaufsmöglichkeiten, die eine vielfältige Arbeitsumgebung bieten.
Eckdaten
| Spalte 1 | Spalte 2 |
|---|---|
| Objektadresse | Neugasse 26 |
| Quartier | Innenstadt |
| Nutzfläche | 253 m2 |
| Mietzins | CHF 220 pro m²/Jahr exkl. NK |
| Bezugstermin |
nach Vereinbarung |
